第67回代表幹事会結果報告
朝陽同窓会 会員各位
朝陽同窓会幹事長 橋本健一
第67回代表幹事会は12月3日(金)に書面開催され、
14日(火)までの期限で下記議案につき審議をいたしました。
議案 館山寮第二期工事
計画概要、工事内容、日程、レイアウト図等
報告 100周年記念事業準備状況
記念祝賀会、記念名簿等
期限までに頂いた賛否表明の結果、賛成34人、反対0人、意見表明のみ1人でした。この結果、議案及び報告は承認されましたのでご報告いたします。
詳細につきましては以下の議案書をご覧ください。
また、再建実行委員会の検討状況報告についてはこちらをご覧ください。
以上
2021年12月3日
第67回代表幹事会議案書
◆11月27日(金)にオンライン役員会を開催し、議案について審議・調整し以下の議案書を第67回代表幹事会議案として、提出することで承認されました。
◆なお、今回の議案である館山寮第二期工事計画は11月18日(木)に書面開催された財団法人朝陽会の第4回理事会において承認されています。
議案 館山寮第二期工事計画
1. 計画概要
1) 男子棟及び女子棟の再建と浄化槽更新を実施する
2) 工事は来年1月に着工し、6月末に完成させるものとする
3) 施工は加藤建設に発注、設計工事監理はニジアーキテクツに委嘱する
4) 工事費総額は11,307万円を上限とする
5) 工事代金は財団の積立金からまず拠出し、不足分は今後更に館山寮再建募金活動を行い得た募金を充当する
2. 工事内容
1) 男子棟
・全てを新たに建築
・7.2m×5.4mの分棟型宿泊室6室を直列的に配列
・6室には教員室、OB室各1室を含む
・2室と3室の間に幅1.8mの通路を設けて、分棟とすることで確認申請の期間を短縮することができる
・全室布団敷とする
2)女子棟
・現存女子棟はシロアリにより腐食し利用不可なので、解体し新たに建築
・4.5m×8.1mの分棟型宿泊室5室を直列的に配列
・5室にはOG室1室を含む、全室布団敷とする
3)浄化槽
・当初は既存浄化槽が、引き続き利用可能と想定
・しかし今回調べ直したところ、法不適格であることが判明
・今回の工事には浄化槽の更新が必要不可欠と判断
4)管理人室改修
・台風により雨漏り等が発生しているので、内装の一部を改修
5)学校からの要望
・上記の工事仕様は学校からの要望も充分考慮している
・母校1年生は館山寮見学を目的とした遠足を12月11日(土)に計画しているため寮見学を受け入れた
3.日程
1)代表幹事会の開催 本件
2)施工業者との仮契約 本年12月
・木材など建築資材を発注
3)施工業者との本契約と着工 来年1月
・着手にあたり一部工事代金支払
4)工事完了 来年6月
・外構工事は7月初旬
4.業者選定
1)加藤建設を施工業者に指名
・既に技術協力者として委嘱済み
・選択の理由
同等の規模の木造建築を多数建設するなど過去の建設実績が豊富
建材の確保などウッドショックへの対応力を評価
第二期工事にも意欲を提示
男子棟、女子棟の再建工事費概算見積額が、当方の予算額と合致
2)ニジアーキテクツに工事監理・結果検収も委嘱
・既に設計を依頼しており、基本設計は完了済
・施工開始後も工事の監理や工事結果の検収などを同社に委嘱
5. 工事費
1)昨年10月における予算
・令和2年度第3回理事会に提出した工事費総額は9,200万円
男子棟再建 4,000万円
女子棟改築 4,000万円
保健室増設、コロナ対策 1,200万円
計 9,200万円
2)今回の概算見積
・工事費総額は11,107万円
男子棟再建 4,038万円
女子棟再建 3,728万円
管理人室改修 182万円
浄化槽更新 1,833万円
設計料、工事監理料 990万円
技術協力費 36万円
初期費用 300万円
計 11,107万円
・初期費用は工事費以外の費用(カーテン、空調機等什器備品の購入)
3) 予算と見積概算額との差異
・工事費総額は予算に比べ1,907万円増加
・増加の要因は浄化槽更新1,833万円と初期費用300万円の追加による
・それ以外は女子棟を改築から解体新築に替えても、全て予算内
4)工事費総額の確定
・施工業者との契約決定は、来年1月を予定
・それまでは概算見積額を更に精査し、金額の節減を図る
6.資金計画
1)資金手当
・総額工事費の11,107万円の支出は、まず財団手持資金から支出
・本年10月末の手持資金
保険金 8,660万円
館山寮再建募金既応募額 3,248万円
第一期工事代金 △1,600万円 倒壊男子棟解体費
計 10,308万円
2)不足分
・不足分799万円は更に館山寮再建募金を募り充当
・来年1月にニュースレターを発行し、館山寮再建募金を強調する
臨時号には記念祝賀会開催、記念名簿発行、100年誌編纂なども広報
2)資金調達不足への対応
・来年6月までに館山寮再建募金が目標額に到達しなかった場合は、100周年記念募金の内、将来の館山寮改築のための資金からから支出
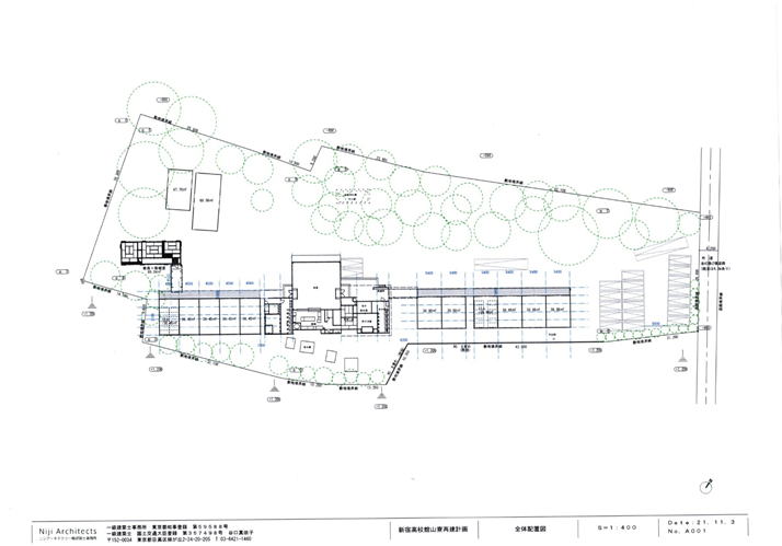
添付資料(全体図,男子棟,女子棟)

こちらには議案書に掲載のものではありませんが、建物見取り図(模型鳥瞰図)、レイアウト図をご参考に示します。
以下は報告事項です
報告 100周年記念事業準備状況
1. 記念音楽会
コロナ感染拡大の影響より「2023年度開催」に延期
2. 記念祝賀会
1)記念式典
・祝賀会同日(10月23日(日))の午前に体育館で開催
・来賓数十名、同窓生200人を招待し、生徒は代表者のみ出席
その他の生徒は教室でLIVE配信にて参加、同窓生も視聴可能
・記念式典参加者の募集、依頼方法は別途検討する
2.記念祝賀会の実施可否を1月の役員会にて判断し、実施可なら以下の要領にて3月に契約する
現時点では、次の事態ではキャンセル料(実施6か月前から発生)は課せられないので実施可能と考えている
事態:①緊急事態宣言などの外的要因
②人数の減少(宴会自体のキャンセルがなければ)
要領:①着座、参加者400人で計画
参加者募集を2段階で受付
1次)1月発行予定のニュースレターで募集、2~5月 集客状況判断
2次)6~8月 1次状況を踏まえ朝陽発行時に募集を展開
②参加者の会費支払時期 9月~10月初旬の間、事前払い
この時点で参加者数が確定できる
3.記念名簿
契約締結 (委託先業者(株)サラト) 12月
第1回調査票送付、「朝陽」71号同時 5月末~6月初
名簿販売促進文書送付 5月末
第2回調査票送付 7/8月
名簿販促期間(電話・文書)にて会員へ向けて 7月~3月
名簿発送 2023年3月
尚、契約内容は前回役員会、代表幹事会に報告の通り
以上
再建実行委員会の検討状況
2019年9月の台風15号で、館山寮は男子棟などが壊滅的な被害を受けました。 朝陽同窓会では、建築家などの同窓生による「館山寮再建実行委員会」を結成し、
早期再建に向けて現地を調査するとともに、それぞれの仕事がほぼ終わる土曜日 の夜を中心に、30回以上の会議を続けてきました。
4社による入札の結果、同窓生の一級建築士事務所に設計業務を委託。
建設工事は地元の加藤建設に依頼することも決まりました。
新型コロナへの対応や、海洋汚染などへの配慮、風水害といった災害への備え なども検討。多岐にわたる議論を重ねました。
従来の畳にごろ寝より、二段ベッドがいいのではという話も出ましたが予算面などで断念しました。
また、十数回の現地調査などの結果、新たな問題も浮上しました。
・台風の被害は受けなかった女子棟が、シロアリ被害が深刻で、現状で使い続ける のはむつかしいと指摘されたのです。
・さらに再建にあたっては浄化槽の更新が不可避であるということも明らかになりました。
ウッドショックなどによる材料費の高騰もあり、現状では当初の見積もりを超え る1億1300万円ほどの再建費用が計上されています。
実行委員会では、屋根や床、壁面材料費など多岐にわたる費用の削減に努めてき ましたが、利用する生徒や先生、同窓生の安全と耐用年数などを考えた場合、これ 以上の大きな削減は困難な状況です。
保険金と同窓生らによる再建募金は合計で1億円となりましたが、このままでは 赤字は免れません。
新宿高校関係者にとって生涯の思い出になる館山寮の早期完成に向け、同窓生の 皆さまにはさらなるご支援をお願いする次第です。